Zu Inhalt springen
Europas größte Bau & Baumaschinen Community - Mitglieder: 38.245

Recommended Posts

Geschrieben (bearbeitet)

Hier der alte Kindergarten der Abgerißen wird

1267909_338376179631484_819202297_o.jpg



Den Abbruch der alten Sozialwohnungen auf dem Gelände hat seinerzeit Abbruch Sperling gemacht wink.gif

Bis Denn wave.gif bearbeitet von Bastian n.

Registriere dich um diese Anzeige nicht mehr zu sehen.

Geschrieben

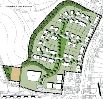
So,

hier mal ein Übersichtsplan vom Gelände in Riemke

photo_18733.jpg


Foto:Stadt Bochum

Der neue Kindergarten ist bereits fertig (unten Links auf dem Bebaungsplan)

Lg Basti wave.gif
Geschrieben

So,

heute mal Bilder von der Baustelle am Fehrnwährme Kraftwerk

1237277_339518889517213_1674781794_o.jpg



Ich tippe mal das ist ein Liebherr LTM 1500 eusa_think.gif

Diskutiere mit!

Du kannst jetzt antworten und Dich später anmelden. Wenn du bereits einen Account hast kannst du dich hier anmelden.
Note: Your post will require moderator approval before it will be visible.

Gast
Antworte auf dieses Thema...

×   Du hast formatierten Inhalt eingefügt..   Formatierung wiederherstellen

  Only 75 emoji are allowed.

×   Dein Link wurde automatisch umgewandelt und eingebettet.   Statt dessen nur den Link anzeigen

×   Your previous content has been restored.   Clear editor

×   You cannot paste images directly. Upload or insert images from URL.

  • Gerade aktiv   0 Mitglieder

    • No registered users viewing this page.
×
  • Neu erstellen...