Zu Inhalt springen
Europas größte Bau & Baumaschinen Community - Mitglieder: 38.315

Recommended Posts

Geschrieben (bearbeitet)

Hallo zusammen,

auf dem ersten Bild (6.5.1951) ist die Ausgangsituation. Auf dieser Anlage waren Förderwagen mit 1000 ltr.
Inhalt für den Unter-wie Übertagebetrieb eingesetzt. Am linken Bildrand ist das Aufbereitungsgebäude zu
erkennen.(Kohlenwäsche).Im Hintergrund das Stahlgerippe der im Bau befindlichen Schwerflüssigkeits-
wäsche (Bergevorabscheidung) Im Vordergrund stehen die Materialwagen die z.B. vom Holzplatz kamen.
in Bildmitte ist eine Rampe die zum hoch ziehen der Materialwagen diente. In Gleismitte lief eine ca. 15cm
dicke Rollenkette mit Mitnehmer die an den Achsen der Förderwagen eingriffen Das gleiche gilt für die dahinter
liegenden zwei Betonrampen(als Schiefe Ebene zu erkennen) Eine diente zum hoch ziehen der mit Berge
beladenen Wagen die andere für Leerwagen nach Untertage. Siehe erstes Bild Gleisplan Wagenumlauf.

--

.Berg_1.jpg



dieses Bild von der anderen Seite

--

.Berg_2.jpg



Im nächsten Bild haben die Förderwagen eine Ebene erreicht, auf der die Wagen stehen blieben bis sie von
nachfolgenden Wagen weitergeschoben wurden. Am rechten Bildrand erkennt man die Spannvorrichtung
der Bergekettenbahn. Unmittelbar dahinter stehen zwei Bergewagen schon im Gefälle die von einer Wagen-
bremse gehalten werde bis der vorherige Wagen in der Kettenbahn einen bestimmten Abstand hat.
-- bearbeitet von Baggerferd

Registriere dich um diese Anzeige nicht mehr zu sehen.

Geschrieben (bearbeitet)

--Bild zu vorherigen Seite

--

.Bergest.b.jpg




Das nächste Bild ist eine Zeichnung der Antriebs-und Umkehrstation der Bergekettenbahn. Die Kettenbahn
war ca. 400 Meter lang und führte zur Bergesturzanlage dabei wurden 30 Höhenmeter überwunden.

--

.Berg_xx.jpg



Auf den nächsten Bildern sieht man die Antriebsstation im Bau. (1948/49)

bearbeitet von Baggerferd
Geschrieben (bearbeitet)

Bild 1
Im Schatten die Spannsäule für die Kette, in Bildmitte am Schatten ist das Gleis abgestützt darüber sieht
man die Wagenbremse und darüber den Antrieb der Kette.

--

.Bergest.r1.2.jpg



--

.Bergest.r1.jpg



Fortsetzung folgt. bearbeitet von Baggerferd
Geschrieben
Hallo Ferdi,

super Bericht, mach weiter so. top.gif Allerdings fällt mir die Zuordnung der Gebäude zum Lageplan noch schwer. eusa_think.gif

Geschrieben

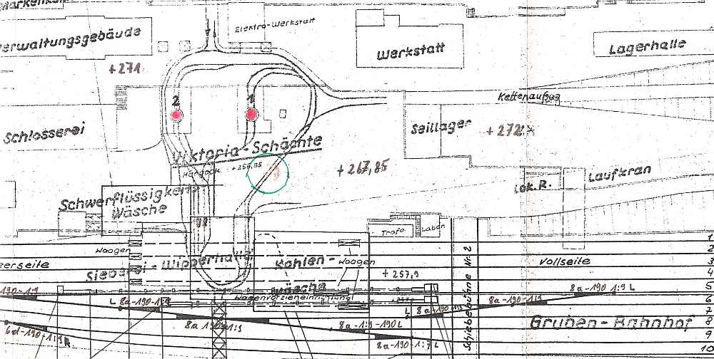
Hallo zusammen,

versuche mal mit weiteren Bildern und Plan die Zuordung zu erleichtern.

--

00.2.jpg



Der grüne Kreis markiert die beiden Rampen auf denen die Leer- bzw. die Bergewagen hochgezogen
wurden. Die Schienenoberkannte (SO) an den beiden Schächten lag bei +266,85nn während die SO hinter
den beiden Rampen bei+267,85nn lag. Dadurch konnten die Förderwagen im anschließenden Gefälle den
Schächten oder wie im Plan dem Kettenaufzug (Bergekette) selbstätig zu laufen.

Dieser Bildausschnitt von 1950 zeigt folgendes. Die Schwerfüssigkeitswäsche war noch nicht im Bau als
Punkt 1 bezeichnet,das im Plan als Schlosserei bez. Gebäude war auch noch nicht im Bau Punkt 2
Punkt 3 sind die beiden Rampen und Punkt 4 die Bergekette.

--

1_2.4.jpg

Diskutiere mit!

Du kannst jetzt antworten und Dich später anmelden. Wenn du bereits einen Account hast kannst du dich hier anmelden.
Note: Your post will require moderator approval before it will be visible.

Gast
Antworte auf dieses Thema...

×   Du hast formatierten Inhalt eingefügt..   Formatierung wiederherstellen

  Only 75 emoji are allowed.

×   Dein Link wurde automatisch umgewandelt und eingebettet.   Statt dessen nur den Link anzeigen

×   Your previous content has been restored.   Clear editor

×   You cannot paste images directly. Upload or insert images from URL.

  • Gerade aktiv   0 Mitglieder

    • No registered users viewing this page.
×
  • Neu erstellen...