Zu Inhalt springen
Europas größte Bau & Baumaschinen Community - Mitglieder: 38.220

Recommended Posts

Geschrieben (bearbeitet)

Hallo alle zusammen,

ich stecke momentan in der Klemme. Wir werden diese Woche die Fundamentenstreifen für die Feriggarage(3x6) von der Firma Zapf fertigstellen. Aber keiner kann mir die Fundamentenhöhe genau sagen. Mein Fundamentenbauer kann von der Baupläne nicht so richtig entziffern. Mein Architekt sagt, ich soll einen Vermesser bestellen. Der Vermesser sagt , dass er mit der höhe nicht zu tun hat. Das ist doch nicht normal!! Der Fundamentenbauer schätzt ca. -0.35 cm von der Oberkante. Aber bevor wir einen Fehler machen, würde ich gern sicher sein. Deswegen brauche ich eure Hilfe, was wir beachten müssen, ob es mit Estrichhöhe was zu tun hat!? Wenn ja, in der Garage 10 cm und im Haus 20cm.  Ich hoffe, dass jemand hier das schon mal gemacht hat und mir helfen kann.

Vielen Dank im Voraus

IMG_1529.PNG

IMG_1530.PNG

IMG_1531.PNG

bearbeitet von Rakyildiz

Registriere dich um diese Anzeige nicht mehr zu sehen.

Geschrieben

Rein theoretisch müsste ok Fundament 45 cm tiefer sein als der fertige Fussboden im Haus.

 

Fertige Bodenhöhe in Garage ist 35 cm unter deiner 0.00 Höhe dann musst noch 10 cm drunter  leiben für deinen Estrich in der Garage, also 45 cm unter fertigem Fussboden im Haus.

Wenn alles so gebaut wurde wie es geplant wurde. Sicherheitshalber kannst du es nochmals über den Höhenfestpunkt prüfen lassen, ok Fundament  sollte dann bei 56, 68 üNN sein.

Geschrieben

Erst mal viel Dank für eure schnellen Antworten.

Wir haben die folgende Garage bestellt:

Einzelgarage Z3 295/600 Einzelgarage Facto B 295 K
Garagenmaß (L/B/H) 6,00m x 2,95m x 2,55m Tor-Durchfahrtsmaß (B/H) 2,48m x 2,11m 

Ich habe grad auf der Seite Zapf gesucht,aber keine Informationen über Estrich oder Bodenhöhe gefunden.  Es wird definitiv als ganzes mit Fußboden angeliefert. Also hat man dann keine 10 cm Bodenhöhe ,die man nicht mitrechnen muss?

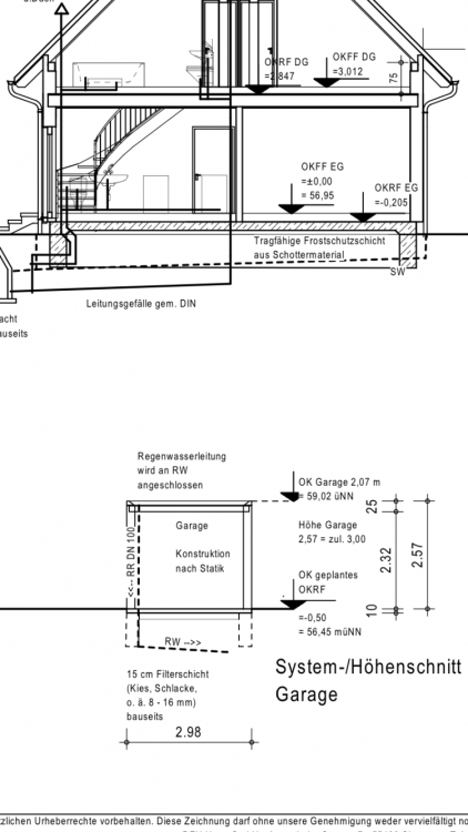
Unsere Nachbarn haben auch gleiches Problem(gleiche Garage). Wir haben beide gleichen Fundamentenbauer aber verschiedene Architekten. In deren Bauplänen wird das als 10cm Schnitt zu sehen.Oder ist es was anderes (Siehe Anhang)?Davon sind wir ausgegangen,dass wir auch 10cm Garagenboden bei der Fundamentenhöhe beachten müssen. Bsp. bei unserem Nachbarn -0,60 cm.

Da ist ein Unterschied,bei dem Nachbar ist das OKRF (-0,50) und bei uns ist das OKFF (-0,35) .

image.png

Diskutiere mit!

Du kannst jetzt antworten und Dich später anmelden. Wenn du bereits einen Account hast kannst du dich hier anmelden.
Note: Your post will require moderator approval before it will be visible.

Gast
Antworte auf dieses Thema...

×   Du hast formatierten Inhalt eingefügt..   Formatierung wiederherstellen

  Only 75 emoji are allowed.

×   Dein Link wurde automatisch umgewandelt und eingebettet.   Statt dessen nur den Link anzeigen

×   Your previous content has been restored.   Clear editor

×   You cannot paste images directly. Upload or insert images from URL.

  • Gerade aktiv   0 Mitglieder

    • No registered users viewing this page.
×
  • Neu erstellen...